Commercial Unit For Sale

Commercial Unit – Approx. 1012 sq.ft.

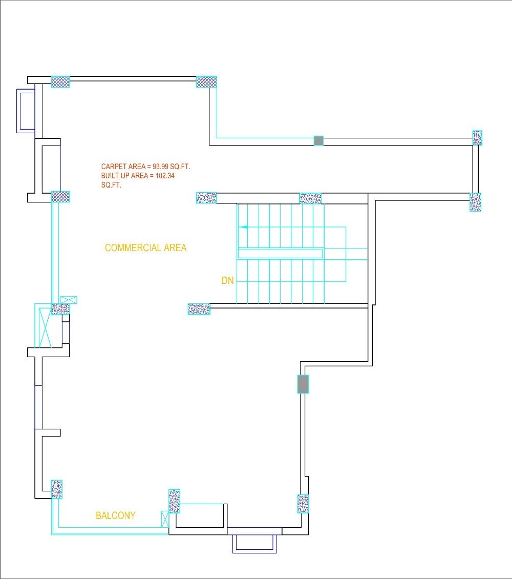
This commercial layout offers a spacious and flexible area suitable for shops, offices, showrooms, or service centers. The open commercial zone provides ample room for interior customization, product display, and customer movement. Its well-planned design ensures maximum utilization of space for diverse business needs.

The layout includes a clearly defined staircase zone for easy access and smooth circulation within the building. An attached balcony adds extra functional value, offering ventilation and a potential utility extension. With a carpet area of approximately 1012 sq.ft. and a super built-up area of 1315 sq.ft., this unit is ideal for businesses seeking visibility, convenience, and an efficient floor plan.

Acube Infrastructure is a trusted leader in delivering innovative, high-quality real estate and construction solutions tailored to modern living.
Acube Infrastructure

Details

3 Bedrooms 2 Bathrooms

Contacts

Contact

    Add Your Comment