10 Bathroom 10 Bedrooms
Agent: Added: 26.11.25
Typical Floor Plan – Residential Layout Overview

The typical floor plan features a well-balanced mix of 2BHK and 3BHK units, thoughtfully arranged around a central courtyard to maximize ventilation and natural light.

Agent: Added: 26.11.25
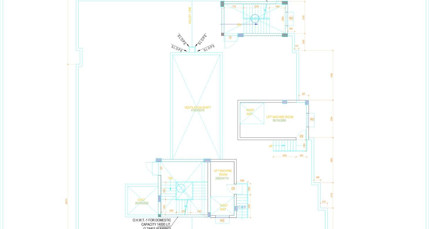
Roof Plan – Building Layout Overview

The roof plan presents a clean and functional arrangement featuring overhead water tanks for both domestic and fire-fighting needs, ensuring adequate storage and safety compliance.

10 Bathroom 10 Bedrooms
Agent: Added: 26.11.25
Ground Floor Plan – Overall Site Layout

The ground floor plan features a well-organized commercial zone with multiple shop units facing the main Katwa Road, ensuring excellent visibility and access.

Area: 2BHK
2 Bathroom 2 Bedrooms 2BHK
Agent: Added: 26.11.25
Typical Floor Plan – 2BHK Residential Unit Overview (Flat–H, 5th Floor)

The Flat-H layout is a compact and efficient 2BHK design featuring two adjacent bedrooms positioned along the upper side of the plan, each with similar proportions for balanced space utilization.

Area: 2BHK
2 Bathroom 2 Bedrooms 2BHK
Agent: Added: 26.11.25
Typical Floor Plan – 2BHK Residential Unit Overview (Flat–H, 4th Floor)

This 2BHK apartment layout provides an efficient and comfortable living arrangement suitable for small families.

Area: 2BHK
2 Bathroom 2 Bedrooms 2BHK
Agent: Added: 26.11.25
Typical Floor Plan – 2BHK Residential Unit Overview (Flat–H, 3rd Floor)

This 2BHK apartment layout offers a well-designed living space ideal for small families.

Area: 2BHK
2 Bathroom 2 Bedrooms 2BHK
Agent: Added: 26.11.25
Typical Floor Plan – 2BHK Residential Unit Overview (Flat–H, 2nd Floor)

This 2BHK apartment layout features a practical and efficient design suitable for small families or individuals seeking well-organized living space.

Area: 2BHK
2 Bathroom 2 Bedrooms 2BHK
Agent: Added: 26.11.25
Typical Floor Plan – 2BHK Residential Unit Overview (Flat–H, 1st Floor)

This 2BHK layout with a 516 sq.ft. carpet area features a spacious and well-proportioned 14′-2″ × 20′-1″ drawing/dining area that forms the heart of the home.

Area: 3BHK
2 Bathroom 3 Bedrooms 3BHK
Agent: Added: 26.11.25
Typical Floor Plan – 3BHK Residential Unit Overview (Flat–G, 5th Floor)

This 3BHK layout with an 803 sq.ft. carpet area features a well-balanced arrangement centered around a spacious 13′-2″ × 13′-5″ drawing/dining area, which acts as the main hub of the home.

Area: 3BHK
2 Bathroom 3 Bedrooms 3BHK
Agent: Added: 26.11.25
Typical Floor Plan – 3BHK Residential Unit Overview (Flat–G, 4th Floor)

This 3BHK layout with an 803 sq.ft. carpet area offers a well-organized and efficient arrangement, centered around a spacious drawing/dining area measuring 13′-2″ × 13′-5″.